Design & Technik

Hochwertige Planung

Eine klare Vision zu entwickeln ist eine Sache. Eine Andere ist es, sie zu wahrem Leben zu erwecken.

Planung und Organisation sowie qualitativ hochwertige Ausführung sind dabei wesentliche Faktoren. Ziel ist es, ein ganzheitliches Design hervorzubringen, das sowohl durch individuelle Optik als auch durch erforderliche Zweckdienlichkeit besticht.

Durch Professionalität in der Planung, Kreativität im Design und Integration jahrelanger Erfahrungswerte verleihen wir den Vorstellungen des Kunden maßgeschneiderte Konturen. Um das entstehende Hotelobjekt visuell zum Leben zu erwecken, dienen Skizzen, Entwürfe und dreidimensionale Ansichten.

Starke Bautechnologie

RASCHE MONTAGE | NIEDRIGENERGIE | PASSIVHAUS TECHNIK
EIGENE PRODUKTIONSWERKE | HÖCHSTE WÄRMEDÄMMUNG

Minimaler Energieverbrauch durch beste Wärmedämmung und hochwertige Materialien!

Ausgereifte Wandsysteme und energieeffiziente Heiztechnik ermöglichen eine Niedrigenergie- und Passivhausbauweise. Jedes Fertighotel wird in eigenen Werken produziert. Der hohe Vorfertigungsgrad garantiert eine gleich bleibende Qualität aller Bauteile sowie wetterunabhängige Fertigung und rasche Montage vor Ort. Für die Ausführung und Umsetzung sorgen ein Team aus Professionisten und eine sorgfältige Vorgangsweise.

Schöne Aussenoptik

HOLZOPTIK  |  GLASVERBAU  |  PUTZFASSADE  |  FLACHDACH
PULTDACH  |  SATTELDACH  |  EXTERIOR PLATTEN

Jedes Gebäude definiert sich zu allererst über sein äußeres Erscheinungsbild. Die Optik der Fassade nimmt dabei einen entscheidenden Stellenwert ein. Ob Holzoptik, Glasverbau oder Putzfassade - bei einem Fertighotel bleiben keine Wünsche offen.

Die Möglichkeit variabler Außenfassaden, durchdachte Raumgestaltung und hochwertige Innenausstattung machen Ihr Fertighotel zu einem besonderen Ort, der Charakter und Individualität ausstrahlt. Je nach Lage und Größe des Fertighotels und des Grundstücks bietet sich auch die  Gestaltung von Freiflächen sowie Terrassen und Balkone im Außenbereich an, um Ihren Gästen einen unvergesslichen Aufenthalt zu gewähren.

Gemütliche Zimmer

EINE SYMBIOSE AUS PLANUNG & DESIGN.

Es gibt keine Standardmaße von Grundrissen, an die wir in der Konzeptionierung gebunden sind. Zimmergrößen werden dem Anforderungsprofil angepasst und maßgeschneidert entsprechend Ihren Vorstellungen gebaut. Der hochwertige Innenausbau ist ident zum Massivbau.

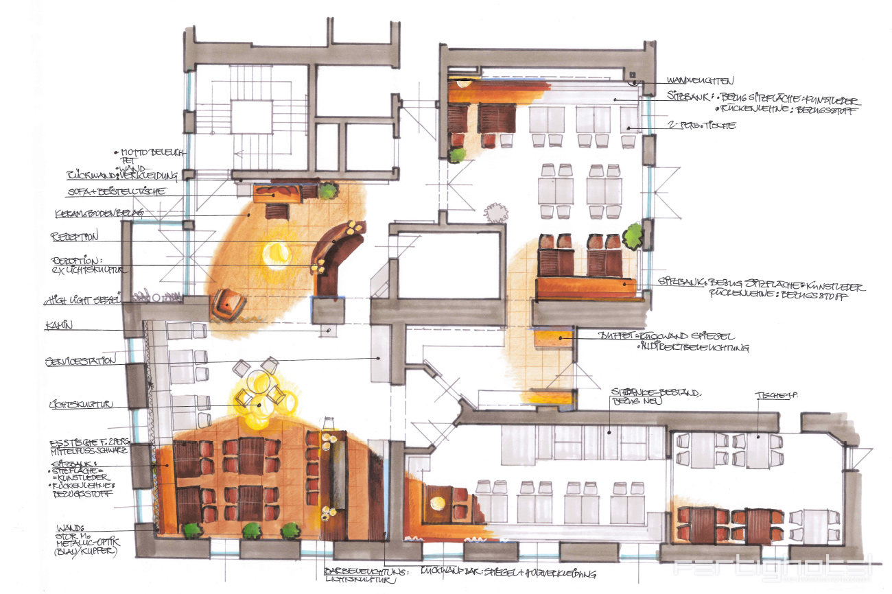
Öffentliche Bereiche

FRÜHSTÜCK? EIN DRINK AN DER BAR?
Erweitern Sie doch das Angebot Ihres Hotelbetriebes um einen gemütlichen Frühstücksraum für einen optimalen Start in den Tag oder eine stimmungsvolle Bar, um den Abend entspannt ausklingen zu lassen. Als Unternehmen mit langjähriger Erfahrung im Bereich der Gastronomie entwickeln wir Orte, die bei Ihren Gästen durch ein harmonisches, stimmungsvolles Ambiente für Begeisterung sorgen werden und als hervorragende Ergänzung zum Nächtigungsbetrieb das Angebot Ihres Fertighotels effektiv abrunden.

EIN TREFFEN IN DER LOBBY? EINE STUNDE FITNESS?
Empfangen Sie Ihre Gäste an einer einladenden Rezeption, bieten Sie Möglichkeiten für Seminare oder locken Sie Ihre Gäste mit einem Wellness-oder Fitnessbereich. Ihr Fertighotel lässt sich flexibel um öffentliche Bereiche erweitern.