Urlaubsfeeling und starker Bezug zur Region
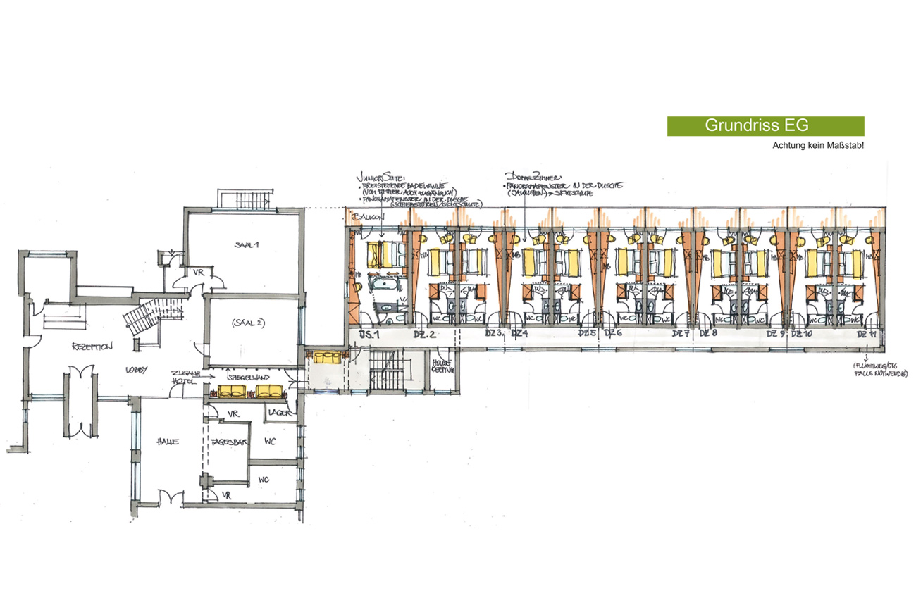
Zubau zu Bestand
Die Region um Salzburg bietet viel zu entdecken. Nicht nur Naturschauspiele sondern auch höchste Qualität an Gastlichkeit.
Gemeinsam erarbeiten wir eine harmonische Bestandserweiterung die sich optisch gut an die Bedürfnisse vor Ort integriert.